
Адрес: г.Санкт-Петербург,
Петергоф, Ропшинское ш., 8Е
Построим правильную каркасную баню под ключ
с учетом вашего бюджета и ваших пожеланий за 30 дней
БЕЗ СТРОИТЕЛЬСТВА И УСАДКИ
УСТАНОВКА В ДЕНЬ ДОСТАВКИ
ГАРАНТИЯ 12 МЕСЯЦЕВ
ТОЛЬКО ВЫСОКОКАЧЕСТВЕННЫЕ МАТЕРИАЛЫ
И СОВРЕМЕННЫЕ ТЕХНОЛОГИИ

Для производства наших бань мы используем только сухой пиломатериал камерной сушки влажностью не более 12%.

Мы производим наши бани по финской технологии в врезкой ригеля в стойки. Это предотвращает деформацию каркаса, повышает его долговечность и надежность.

Весь пиломатериал в обязательном порядке проходит обработку антисептиком, который увеличивает срок ее службы до 50 лет.

Для отделки парных мы используем материалы только наивысшего класса Экстра. Это может быть осина, термоосина, ольха или кедр.

В наши бани мы устанавливаем чугунные печи разных моделей. При нагревании чугун не выжигает кислород в парной, пар становится легким и мягким.

В наши парные мы устанавливаем оконные стеклопакеты из закаленных стекол. Они не запотевают и не боятся перепадов температур и влажности.

Для защиты от возгорания мы используем жаропрочные панели собственного производства. Они выдерживают прямое горение и длительное воздействие от печи.

В помывочном отделении в наших банях полы защищены специальной высокоэластичной бесшовной гидроизоляцией. Никаких металлических поддонов!
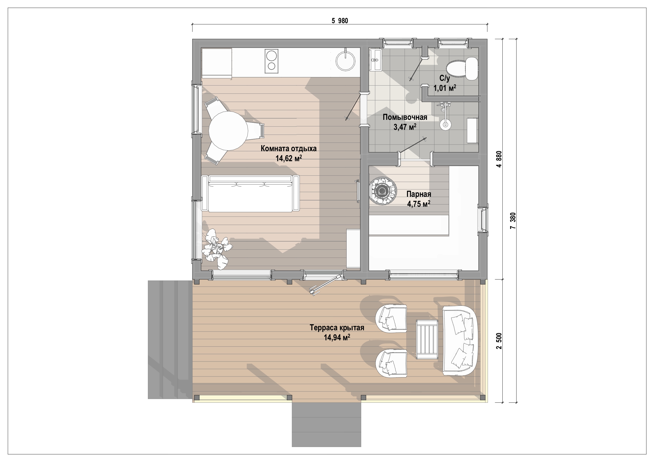
Банный комплекс с купелью под крытой террасой. Доставляли двумя готовыми модулями. В бане два входа: один основной, второй для выхода на террасу прямо из комнаты отдыха. Отделка и сантехника по выбору заказчика. Парная отделана вагонкой из ольхи. Печь Атмосфера с сеткой-каменкой.
Баня для коммерческого использования на базе отдыха в Карелии. В бане два выхода. Один через прихожую, второй на террасу из комнаты отдыха. В будущем впритык к террасе планируется установка купели. В парной два панорамных окна, отделка термоосиной и чугунная печь с экономайзером. Топка выведена на улицу.
Diplomat-Terra - баня по индивидуальному проекту размером 8х2,5 с дровником и крытой террасой. Шикарная парная с соляным панно, парящими полками и разными сценариями освещения. В комнате отдыха большое панорамное окно, через которое можно наслаждаться прекрасным садом.
Модульная баня по индивидуальному проекту. Доставлялась тремя модулями: два модуля бани и модуль хозблока с крытой террасой. Монтируется на месте за один день. В комнате отдыха одна из стен отделана реечным профилем с подсветкой, на полу кварцвинил с теплым полом. Душевая в лиственнице. Печь Атмосфера, отделка за печью талькохлоритом.
Модульная баня по индивидуальному проекту размером 7х3 с крытой террасой 7х1м. В комнате отдыха большое панорамное окно, через которое можно наслаждаться прекрасным садом. Душевая полностью в кафеле. Печь Пегас Легион с выносом топки на улицу, полки из термоосины, выдвижной нижний полок.
Каркасная баня со сборкой на участке. Второй свет и панорамные окна в комнате отдыха. Душевая в лиственнице. Печь Атмосфера с ламелями из камня змеевик, отделка за печью также змеевиком.
Модульная баня негабаритной высоты. Доставляется готовыми модулями, выносы крыши монтируются на месте. В санузел есть два входа: работая в саду, можно попасть в него с улицы, исключая проход через всю баню. Сзади расположен вход в дровник. Баня отделана осиной, в углах вставки из термоосины. Люксовые полки и светильники.
Каркасная баня House-2 по индивидуальному проекту. Полностью собиралась на участке. Баня имеет размеры 6х5,7м , Г-огразную террасу под общей кровлей и открытую террасу 6,0х6,0м. Комната отдыха с панорамными окнами 0,8х1,9м. Парная обшита кедром, в углах светильники с соляными вставками. Душевое отделение в кафеле. Во всей бане сделаны теплые полы.
Готовая баня Diplomat 6х2,5м с террасой. В парной и комнате отдыха панорамные окна 140х50см, проходное душевое отделение. В комнате отдыха расположен шкаф, где спрятан бойлер и сантехническая разводка. Также в комнате установлена встроенная мебель (рундуки и подъемный стол), полка под окном со шкафчиками.
Готовая баня Diplomat-2 6х2,5м. В парной и комнате отдыха панорамные окна 140х50см, для проветривания в комнате предусмотрено распшное окно 1,0х1,0м. Помывочное отделение с душевой системой Тропический душ. В парной сделан нижний выдвижной полок, который можно задвинуть, чтобы подойти к верхнему полку. В комнате отдыха расположен шкаф, где спрятан бойлер и сантехническая разводка.
МЫ ДЕЛАЕМ ЛУЧШИЕ ПРОЕКТЫ ДЛЯ СВОИХ КЛИЕНТОВ!

Наш проект признан Лучшим проектом бани по результатам народного голосования, проводимого в рамках премии «Проектировщик года 2023» от Академии загородного строительства

ВЫБЕРИТЕ СВОЮ БАНЮ:
БАННЫЙ КОМПЛЕКС С КУПЕЛЬЮ
КАРКАСНАЯ БАНЯ КОВЧЕГ
МОДУЛЬНАЯ БАНЯ DIPLOMAT-TERRA
МОДУЛЬНАЯ БАНЯ ИНД.ПРОЕКТ АР-003
ГОТОВАЯ БАНЯ DIPLOMAT PRO MAX
МОДУЛЬНАЯ БАНЯ SOFIA
МОДУЛЬНАЯ БАНЯ AURORA
МОДУЛЬНАЯ БАНЯ 5х4м
ГОТОВАЯ БАНЯ DIPLOMAT
ИМЕТЬ БАНЮ ОТ "БАНИМАСТЕР" ЭТО

НАСЛАЖДАТЬСЯ УСПОКАИВАЮЩИМ ТЕПЛОМ, ЛЮБУЯСЬ ПРИРОДОЙ ПРЯМО ИЗ ПАРНОЙ
РАССЛАБЛЯТЬСЯ, СНИМАТЬ НАПРЯЖЕНИЕ В ПАРНОЙ СПЛАНИРОВАННОЙ ИМЕННО ПОД ВАС
изображение от pvproductions на Freepik на Freepik">


ПРОВОДИТЬ ВРЕМЯ В КОМПАНИИ ДРУЗЕЙ ИЛИ СЕМЬИ В КОМНАТЕ ОТДЫХА, СПРОЕКТИРОВАННОЙ ПО ВАШЕМУ ВКУСУ
Изображение от pressfoto на Freepik">Изображение от pressfoto на Freepik
О КОМПАНИИ
Уже более 9 лет мы строим современные, красивые и энергоэффективные бани в Санкт-Петербурге, Москве, Ленинградской и Московской областях.
У нас свое крупное производство, которое может выпускать до 15 бань в месяц.
Мы работаем без посредников на основании заключенных договоров.
Мы осуществляем строительство бань под ключ, а также выполняем все виды работ, связанных с банями: разработку проектов, установку любых видов банных печей, подключение инженерных коммуникаций, устройство фундаментов.
В нашем штате работают опытные проектировщики, архитекторы и инженеры, которые могут спроектировать любую баню именно под ваши пожелания. Каждая наша баня уникальна!



ПРОИЗВОДСТВО МОДУЛЕЙ
Все начинается с закупки материалов для каркаса модулей. Мы покупаем только древесину камерной сушки до 12% влажности. Далее весь материал антисептируется российским составом ХМ-11. Данная процедура защищает древесину и увеличивает срок ее службы на многие годы.
Затем производится сборка каркаса по чертежам и технической документации. Когда каркас собран, производится: утепление каменной ватой, монтаж электропроводки, монтаж канализации, вентиляции, водопровода.
Следом производится внутренняя и наружная отделка: полы, потолки, стены, кровля. Затем вставляются окна и двери.
Далее модули упаковываются, подготавливаются к транспортировке, и доставляются на место установки. Доставка бани осуществляется манипулятором в готовом виде и монтируется за несколько часов или в разобранном виде и идет сборка на участке в течении нескольких недель .
ВЫБИРАЕТЕ БАНЮ, НО ТЕРЯЕТЕСЬ В МНОЖЕСТВЕ ВАРИАНТОВ?
Работаем с 2013 г. и продали более 1000 бань
Строим от бань-бочек до домов с сауной
Знаем о банях все и даже чуть больше
РАССЧИТАЙТЕ СТОИМОСТЬ
ВАШЕЙ КАРКАСНОЙ БАНИ
Длина
Ширина
Дополнительно
У ВАС СВОЙ ПРОЕКТ?
МЫ ВЫПОЛНИМ ЛЮБОЙ!
Вы оставляете заявку или звоните по телефону 8 (812) 409-49-41
Мы с Вами обговариваем детали по телефону. Помогаем определиться с моделью бани, ее размерами и комплектацией.
Заключаем договор, и Вы вносите предоплату в размере 50% от стоимости бани.
После предоплаты мы запускаем производство бани. Срок изготовления 20-60 дней в зависимости от загруженности.
Мы доставляем баню на ваш участок в виде модулей и монтируем их за несколько часов. Либо полностью собираем баню на участке.
Вы наконец получаете удовольствие от посещения собственной бани!
Выставка и производство:
г.Санкт-Петербург, г.Петергоф, Ропшинское ш., 8Е
Внимание! Перед посещением обязательно позвоните по тел.









Введите свой телефон и получите консультацию у специалиста в течение 15 минут
Изображения на сайте:
ООО «Регион-Фасад»
ИНН: 7802594633
КПП: 780201001
Адрес: г.Санкт-Петербург, Петергоф, Ропшинское ш., 8Е
<https://www.freepik.com/free-vector/close-up-of-wellness-accessories_10708215.htm
© 2025 БАНИМАСТЕР. Все права защищены.